LET OP: Bezichtigingen vol!
Op een gewilde locatie aan de rand van Centrum zuid worden 2 nieuwe bovenwoningen gerealiseerd. Na de volledige renovatie zijn de woningen instapklaar en volledig nieuw.
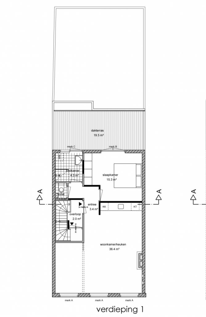
Via de gezamenlijke entree op de begane grond – met bellentableau en brievenbus – heb je toegang naar het appartement welke gelegen is op de eerste verdieping. Er is een gezamenlijke trappenhuis.
Je komt binnen in de lichte woonkamer met hoog plafond en open keuken. Er is een sierhaard en 3 grote ramen die uitkijken op de gezellige straat. De ruime keuken is voorzien van veel kastruimte en voldoende ruimte voor koelkast en kookplaat. De slaapkamer is gelegen aan de achterzijde en geeft toegang tot het ruime dakterras (ca. 20 m2). Vanuit de hal bereik je de badkamer en apart toilet. De badkamer is voorzien van wastafel en douche, en ook kun je hier je wasmachine kwijt.
Het gehele gebouw zal volledig worden gerenoveerd. Na verbouwing zijn de woningen instapklaar.
Binnen 3 minuten lopen, sta je op het van Coothplein in Breda centrum. Ook in je woonomgeving zijn er diverse winkels, leuke restaurants en dichtbij een supermarkt. De bekende Ginnekenweg ligt op loopafstand en op 5 minuten fietsen ligt de gezellige Ginnekenmarkt. Parkeren kan voor de deur of in de omgeving met vergunning.
De foto’s zijn van een vergelijkbaar opgeleverde woning voor een goede impressie.